
Projektet omfatter etablering af et nyt tennis-anlæg med klubhusaktiviteter for Frederiksværk Tennisklub og ved Magleblik Idrætscenter, Halsnæs Kommune.
Frederiksværk Tennisklub skal flyttes fra nuværende beliggenhed i Frederiksværk til Magleblik Idrætscenter, og være en del af den strategiske udviklingsplan ”Helhedsplan for Magleblik Idrætscenter”. Placeringen på Magleblik er en del af en strategi om at samle idrætsfunktioner – og her vil tennisklubben være meget mere synlig, og indgå i meget tæt relation til Magleblik Idrætscenters andre tilbud i Frederiksværkhallen, svømmehallen, fodboldklubben og det planlagte nye padel-anlæg. Flytning og etablering af Frederiksværk Tennisklub ved Magleblik Idrætscenter vil styrke området som centrum i Frederiksværk for varierede idrætsfaciliteter, og kan medføre mange fordele for Frederiksværk Tennisklub, herunder muligheder for vækst. Projektet vedrørende flytning og etablering af Frederiksværk Tennisklub ved Magleblik Idrætscenter bliver opdelt i 2 faser:
Fase 1: Terrænregulering samt anlægsarbejder ifm. etablering af de nye tennis-/ og pickleball-baner.
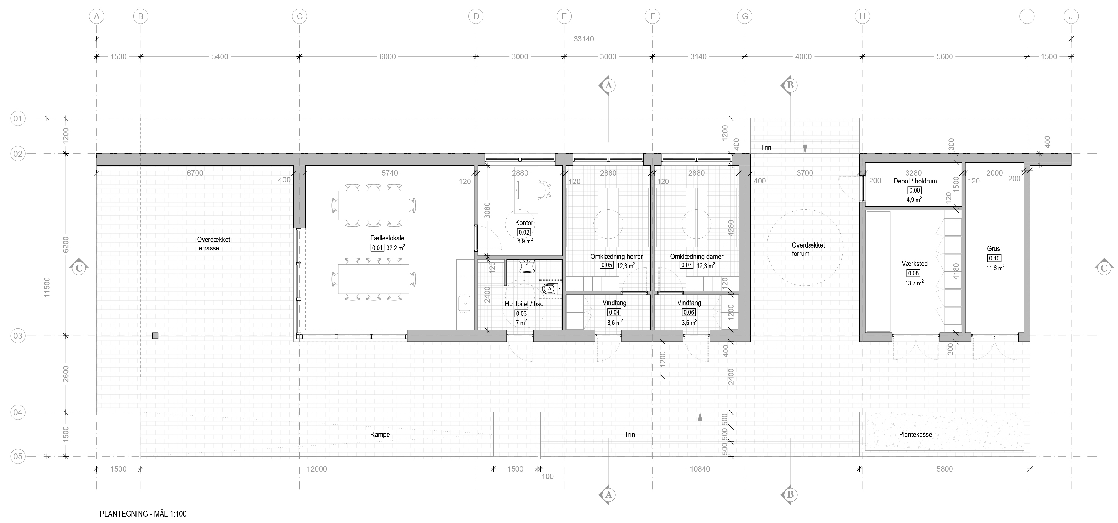
Fase 2: Etablering af et nyt klubhus for Frederiksværk Tennisklub







Projektet omfatter etablering af et nyt tennis-anlæg med klubhusaktiviteter for Frederiksværk Tennisklub og ved Magleblik Idrætscenter, Halsnæs Kommune.
Frederiksværk Tennisklub skal flyttes fra nuværende beliggenhed i Frederiksværk til Magleblik Idrætscenter, og være en del af den strategiske udviklingsplan ”Helhedsplan for Magleblik Idrætscenter”. Placeringen på Magleblik er en del af en strategi om at samle idrætsfunktioner – og her vil tennisklubben være meget mere synlig, og indgå i meget tæt relation til Magleblik Idrætscenters andre tilbud i Frederiksværkhallen, svømmehallen, fodboldklubben og det planlagte nye padel-anlæg. Flytning og etablering af Frederiksværk Tennisklub ved Magleblik Idrætscenter vil styrke området som centrum i Frederiksværk for varierede idrætsfaciliteter, og kan medføre mange fordele for Frederiksværk Tennisklub, herunder muligheder for vækst. Projektet vedrørende flytning og etablering af Frederiksværk Tennisklub ved Magleblik Idrætscenter bliver opdelt i 2 faser:
Fase 1: Terrænregulering samt anlægsarbejder ifm. etablering af de nye tennis-/ og pickleball-baner.
Fase 2: Etablering af et nyt klubhus for Frederiksværk Tennisklub