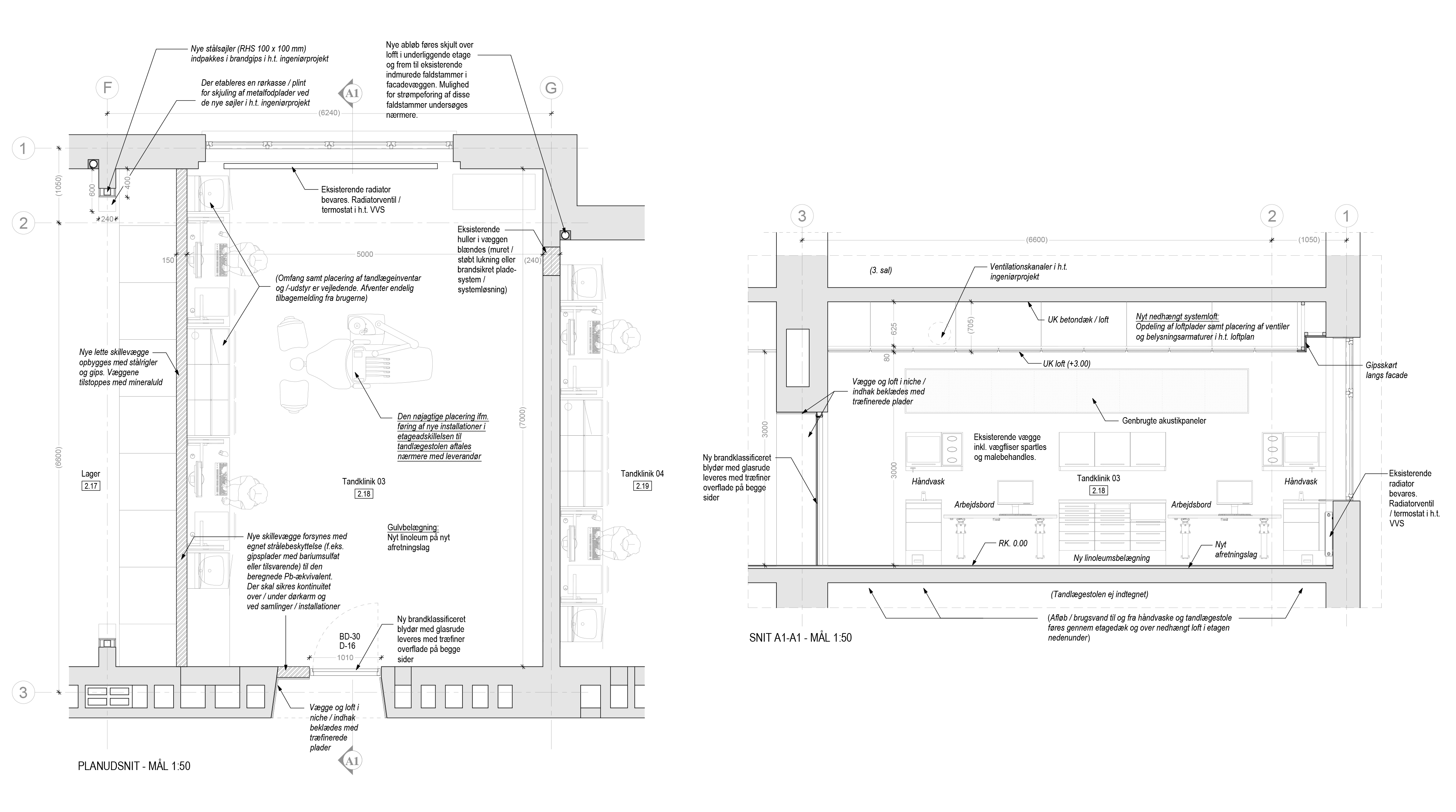
Projektet omfatter etablering af en ny kommunal tandklinik for Frederiksberg Kommune på 2. sal i eksisterende Bygning 10 på Hospitalsgrunden, beliggende på den tidligere hospitalsmatrikel (Frederiksberg Hospital) ejet af Region Hovedstaden. Formålet med projektet er at skabe moderne, driftssikre og hygiejniske faciliteter, der understøtter kommunens fremtidige tandplejetilbud, med særligt fokus på gode arbejdsvilkår, tilgængelighed og et sundt indeklima. Indretningen af klinikken er udviklet med særligt fokus på at skabe en venlig, tryg og imødekommende atmosfære, som adskiller sig markant fra den klassiske, “hvide og kliniske” tandklinik, og hvor der sikres korte forbindelser mellem behandlingsrum, sterilrum og personalefaciliteter. Her er der fokus på farver, materialer, lys, akustik og genbrug. Materialer og farver vælges med reference til bygningens historiske detaljer.
Projektet gennemføres som totalentreprise med Botica Entreprise A/S som totalentreprenør og Arkitekturlab ApS som totalrådgiver. NemIngeniør ApS er underrådgiver på konstruktioner, installationer og brandtekniske forhold, mens J&P Ingeniørfirma bistår med DGNB-certificering og bæredygtighedskoordinering. Den nordlige del af 2. salen i bygningen ombygges fra tidligere operationsrum til en ny og moderne tandklinik med nye installationer, klinikrum, tekniske anlæg og specialudstyr. Projektet indretter en ny tandklinik med fire klinikrum, sterilrum, røntgenrum, opvågningsrum, kontorer, venteområde og personalefaciliteter. Bygningsmæssige indgreb omfatter bl.a. nedrivning af eksisterende konstruktioner, etablering af nye vægge, gulve og lofter samt tilpasning af installationer til klinisk drift.







Projektet omfatter etablering af en ny kommunal tandklinik for Frederiksberg Kommune på 2. sal i eksisterende Bygning 10 på Hospitalsgrunden, beliggende på den tidligere hospitalsmatrikel (Frederiksberg Hospital) ejet af Region Hovedstaden. Formålet med projektet er at skabe moderne, driftssikre og hygiejniske faciliteter, der understøtter kommunens fremtidige tandplejetilbud, med særligt fokus på gode arbejdsvilkår, tilgængelighed og et sundt indeklima. Indretningen af klinikken er udviklet med særligt fokus på at skabe en venlig, tryg og imødekommende atmosfære, som adskiller sig markant fra den klassiske, “hvide og kliniske” tandklinik, og hvor der sikres korte forbindelser mellem behandlingsrum, sterilrum og personalefaciliteter. Her er der fokus på farver, materialer, lys, akustik og genbrug. Materialer og farver vælges med reference til bygningens historiske detaljer.
Projektet gennemføres som totalentreprise med Botica Entreprise A/S som totalentreprenør og Arkitekturlab ApS som totalrådgiver. NemIngeniør ApS er underrådgiver på konstruktioner, installationer og brandtekniske forhold, mens J&P Ingeniørfirma bistår med DGNB-certificering og bæredygtighedskoordinering. Den nordlige del af 2. salen i bygningen ombygges fra tidligere operationsrum til en ny og moderne tandklinik med nye installationer, klinikrum, tekniske anlæg og specialudstyr. Projektet indretter en ny tandklinik med fire klinikrum, sterilrum, røntgenrum, opvågningsrum, kontorer, venteområde og personalefaciliteter. Bygningsmæssige indgreb omfatter bl.a. nedrivning af eksisterende konstruktioner, etablering af nye vægge, gulve og lofter samt tilpasning af installationer til klinisk drift.